[et_pb_section bb_built=”1″][et_pb_row][et_pb_column type=”4_4″][et_pb_text _builder_version=”3.17.6″ text_font_size=”24px”]
Project B
Requests
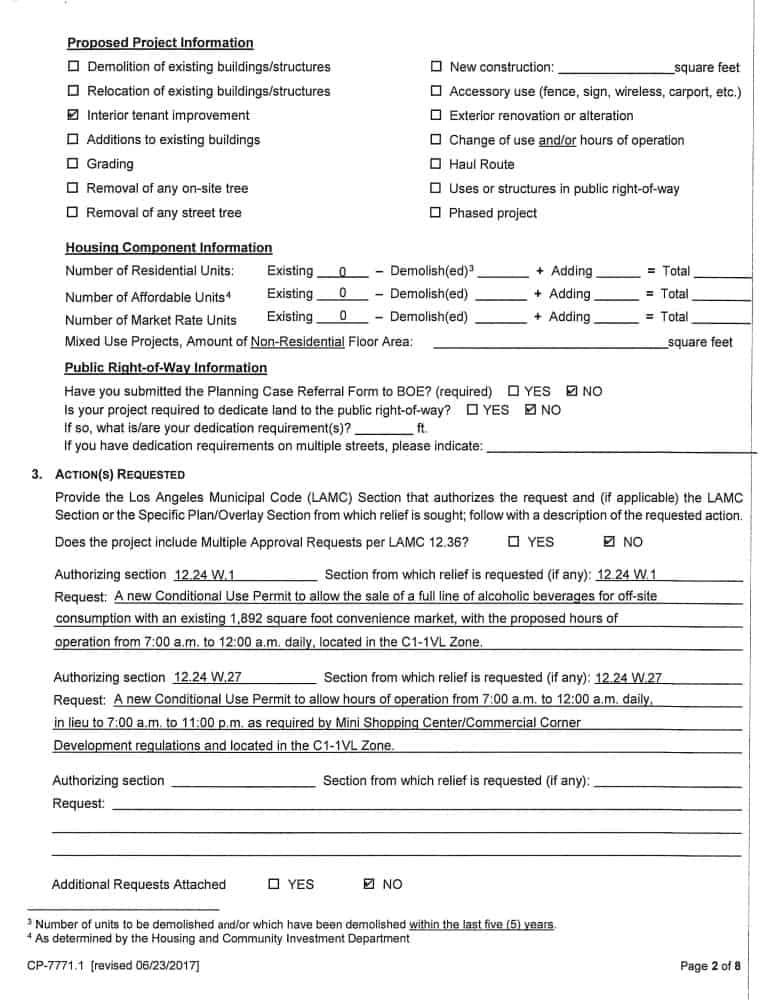
- Pursuant to Los Angeles Municipal Code Section 12.24-W,1, a new Conditional Use Permit to
allow the sale of a full line of alcoholic beverages for off-site consumption, with proposed
hours of operation from 7:00 a.m. to 12:00 a.m. daily, located in the Cl-lVL Zone; - Pursuant to Los Angeles Municipal Code Section 12.24-W,27, a new Conditional Use Permit
to allow hours of operation from 7:00 a.m. to 12:00 a.m. daily, in-lieu to 7:00 a.m. to 11:00
p.m. as required by Mini-Shopping Center/Commercial Corner Development Regulations
and located in the Cl-lVLZone.
Project Description
The subject property is zoned C2-IVL and has dimensions of 94 feet along Balboa Boulevard and
209 feet along an alley, for a total area of 18,874 square feet. The site is improved with a mini shopping
center. Parking is provided in the front of the proposed convenience market, and also
behind the shopping center along the easterly property line.
Properties to the north are zoned C2-1VL and are improved with an office building. Properties to
the east are zoned P-lVL and are improved with a parking lot. Properties to the south, across an
alley, are zoned R3-1 and are improved with a skilled nursing facility. Properties diagonally
across Balboa Boulevard to the southwest are zoned (Q) CR-lVL and are improved with a
parking structure. Properties to the west, across Balboa Boulevard, are improved with a
Commercial Corner development.
The properties to the west and south are zoned R3-1 and are improved with three and four story,
large, multi-family apartment and condominium buildings. The properties to the north
and west, are zoned C2-IVL, (Q) CR-IVL, and P-IVL, and are improved with single-story
Commercial buildings along Balboa Boulevard and Chatsworth Street. The two blocks along the
west side of Balboa Boulevard to the southwest of the subject property are improved with the
Balboa Medical Center.
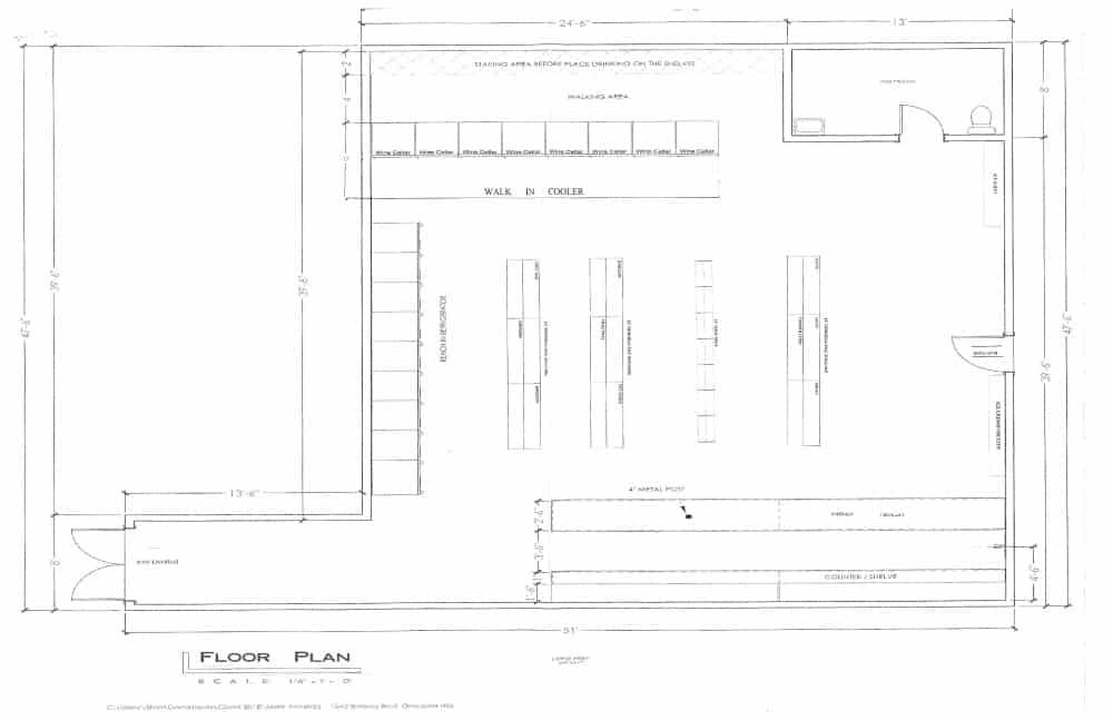
The subject site was previously a 3,874 square foot convenience market which is now been
downsized to an existing 1,892 space. The applicant will be leasing the space for a similar use. A
previous ZA action approved a Conditional Use Permit to allow for the sale of a full line of
alcohol beverages for off-site consumption on October 10, 2006 (Case No. ZA-2006-2456 CUB).
The applicant is requesting a new Conditional Use Permit to allow the sale of a full-line of
alcoholic beverages for off-site consumption in conjunction with an existing 1,892 square-foot
convenience market, with proposed hours of operation from 7:00 a.m. to 12:00 a.m., daily. In
addition, the applicant is requesting a new Conditional Use Permit to allow the hours of
operation from 7:00 a.m. to 12:00 a.m. daily, in-lieu of 7:00 a.m. to 11:00 p.m. as required by
the Mini-Shopping Center/Commercial Corner Development Regulations located in the C1-1VL
Zone.
- Click here to download part 1 of the documentation of the request.
- Click here to download part 2 of the documentation of the request.
- Click here to download part 3 of the documentation of the request.
- Click here to download part 4 of the documentation of the request.
- Click here to download part 5 of the documentation of the request.
- Click here to download part 6 of the documentation of the request.
[/et_pb_text][et_pb_gallery _builder_version=”3.17.6″ gallery_ids=”7417,7418,7425,7409,7415,7426,7410,7419,7427,7411,7420,7428,7412,7421,7429,7413,7422,7430,7414,7416,7431,7423,7424,7432″ posts_number=”24″ show_title_and_caption=”off” background_color=”#ffffff” zoom_icon_color=”#7fbc76″ hover_overlay_color=”rgba(255,255,255,0.9)” /][/et_pb_column][/et_pb_row][/et_pb_section]
